The Lotus
Deschutes Collection
About the Lotus
1,398
Sqft
3 / 2
Bedrooms / Bathrooms
38' x 33'
Width Depth
$249,900
Starting Price
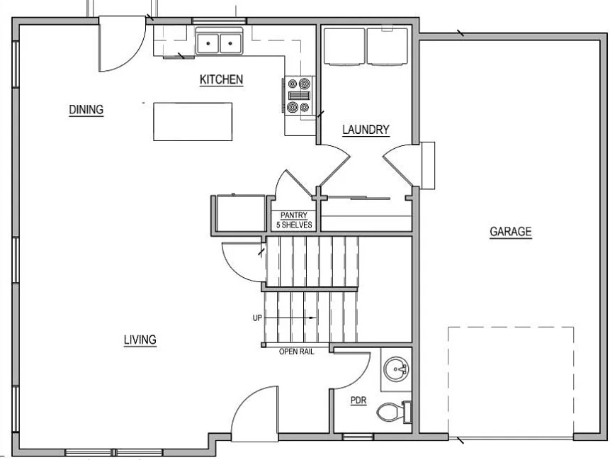
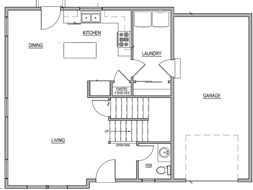
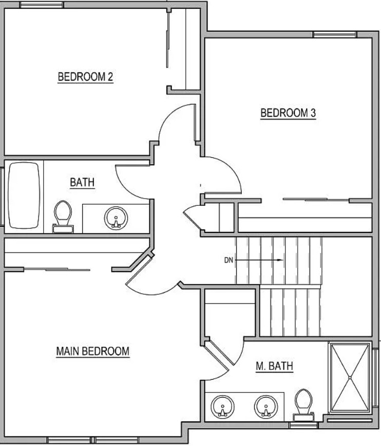
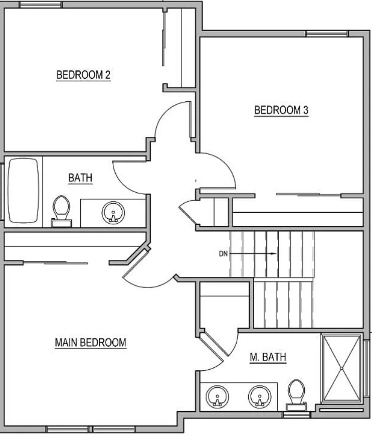
This two story 1398 SQ FT 3 bedroom, 2 bath, Energy-star certified home offers quality finishes throughout. The attractive light and bright floor plan features open great room concept, a covered front porch, laminate flooring throughout the main living areas and vaulted ceilings.
The beautiful kitchen is complete with a pantry, 3-piece stainless steel Whirlpool appliance package, slab countertops and backsplash, and an uninterrupted kitchen island great for entertaining!
The primary bathroom includes Double vanity sinks, step-in showers w/glass doors, and walk-in closets.
Tell Us About Your Project
During the initial consultation phase, our team will work closely with you to understand your goals and objectives for your new home. We’ll also complete a comprehensive site assessment, review the pre-qualification and funding process, and establish a preliminary budget.
At Tailored by Woodhill Homes, we believe communication is key. That’s why we’ll keep you informed and involved in every stage of the building process, from design and planning to construction and finishing. Complete this project information form to schedule your initial consultation and take the first step towards building your new home today!!


